Stan - Novigrad (01886)
- Površina objekta : 76 m2
- Površina zemljišta : 0 m2
- Udaljenost od centra : 800 m
- Udaljenost od mora : 600 m
- Preuzmite expose
380.000 €
| Pogled na more : | Da | Kat : | 1 |
| Parkiralište : | Da | Broj etaža : | 2 |
| Garaža : | Ne | Broj spavaćih soba : | 2 |
| Podrum : | Ne | Broj kupatila : | 1 |
| Mogućnost nadogradnje : | Ne | Godina izgradnje : | 2014 |
| Energetska učinkovitost | Nije određeno |
GALERIJA
OPIS NEKRETNINE
Nekretnine Istra, prodajem stan sa krovnom terasom, Novigrad
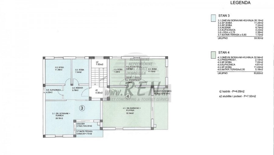
Stan 3 u Novigradu ima ukupno 76 m2, nalazi se na prvom katu + krovna terasa, udaljen je 5 min. (600m) od mora i od prekrasne uređene plaže, 5 min. (800m) udaljeni ste od centra. Stan se sastoji od kuhinje/dnevnog boravka/blagovaone, 2 sobe, kupaonice, terasa. Opremljen je klima jedinicama, vlastiti parking, pogled na more.
Stan je udaljen 1000 m od trgovine, 1000 m udaljen je od restorana, 1000 m udaljen je od tržnice, doktor je udaljen 1000 m, apoteka je udaljena 1000 m, aerodrom Pula udaljen je 60 km, te aerodrom Portorož udaljen je 30 km, marina Novigrad udaljena je 7000 m, te aquapark (Istralandia) udaljen je svega 7 km.
Za dodatne informacije stojimo Vam na raspolaganju.













