Stan - Novigrad (01875)
- Površina objekta : 103 m2
- Površina zemljišta : 0 m2
- Udaljenost od centra : 1000 m
- Udaljenost od mora : 1800 m
- Preuzmite expose
414.440 €
| Pogled na more : | Da | Kat : | 1 |
| Parkiralište : | Da | Broj etaža : | 2 |
| Garaža : | Ne | Broj spavaćih soba : | 2 |
| Podrum : | Ne | Broj kupatila : | 1 |
| Mogućnost nadogradnje : | Ne | Godina izgradnje : | 2025 |
| Energetska učinkovitost | Nije određeno |
GALERIJA
OPIS NEKRETNINE
Luksuzne Nekretnine Istra, prodajem stan, Novigrad, okolica
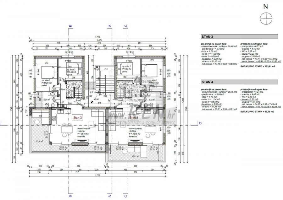
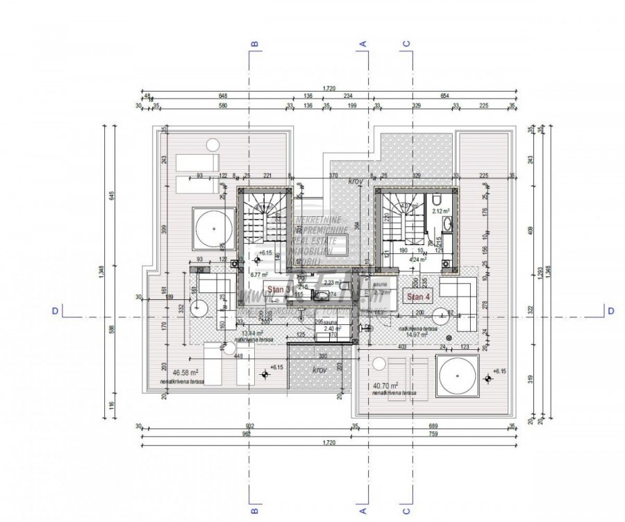
Stan 3 u okolici Novigrada ima ukupno 103,61 m2, nalazi se na prvom katu + krovna terasa, faza gradnje, udaljen je 5 min. (1800m) od mora i od prekrasne uređene plaže, 5 min. (1000m) udaljeni ste od centra. Stan se sastoji od kuhinje/dnevnog boravka/blagovaone, 2 sobe, kupaonice, WC, terasa. Opremljen je klima jedinicama, vlastiti parking.
Stan je udaljen 1000 m od trgovine, 1000 m udaljen je od restorana, 1000 m udaljen je od tržnice, doktor je udaljen 1000 m, apoteka je udaljena 1000 m, aerodrom Pula udaljen je 60 km, te aerodrom Portorož udaljen je 30 km, marina Novigrad udaljena je 7000 m, te aquapark (Istralandia) udaljen je svega 7 km.
Za dodatne informacije stojimo Vam na raspolaganju.














