Građevinsko zemljište - Buje (01742)
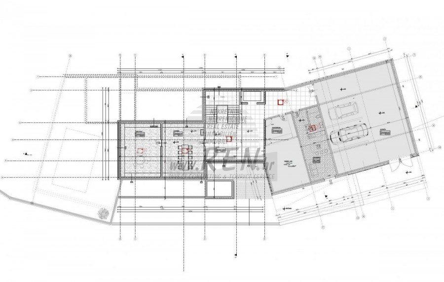
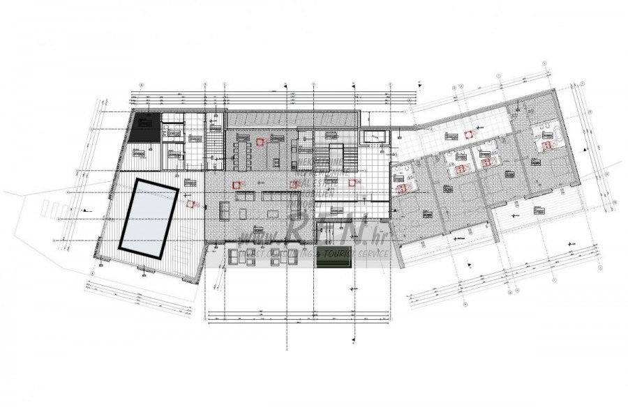
- Površina objekta : 11855 m2
- Pogled na more : Da
- Udaljenost od centra : 1000 m
- Udaljenost od mora : 10000 m
- Preuzmite expose
na upit
GALERIJA
OPIS NEKRETNINE
Nekretnine Istra, prodajem jedinstveno građevinsko zemljište, okolica Buja
Građevinsko zemljište sa luksuznim projektom i ishodovanom građevinskom dozvolom ima ukupno 3700 m2 + dodatno 8155 m2 poljoprivredno (homogena cijelina). Sva potrebna infrastruktura na zemljištu. Prekrasan pogled na more i odlična lokacija. Nalazi se 4000 m od centra Buja, more je udaljeno 10000 m. Golf tereni su udaljeni 12000 m.
Za dodatne informacije stojimo Vam na raspolaganju.







