Kuća - Brtonigla (01634)
- Površina objekta : 144 m2
- Površina zemljišta : 500 m2
- Udaljenost od centra : 2000 m
- Udaljenost od mora : 8000 m
- Preuzmite expose
495.000 €
| Pogled na more : | Ne | Kat : | Prizemlje |
| Parkiralište : | Da | Broj etaža : | 1 |
| Garaža : | Ne | Broj spavaćih soba : | 2 |
| Podrum : | Ne | Broj kupatila : | 2 |
| Mogućnost nadogradnje : | Ne | Godina izgradnje : | 2024 |
| Energetska učinkovitost | Nije određeno |
GALERIJA
OPIS NEKRETNINE
Nekretnine Istra, prodajem kuću, Brtonigla
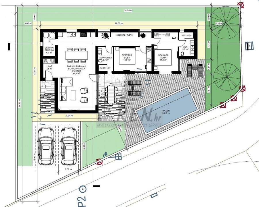
Prodaje se samostojeća prizemna kuća na mirnoj lokaciji u okolici Brtonigle. Kuća ima 144 m2 te se sastoji od natkrivenog ulaza, ulaznog hodnika, praone, 2 kupatila, 2 spavaće sobe, open space prostor u kojem se nalazi kuhinja s blagovaonicom te dnevni boravak s izlazom na natkrivenu terasu i vrt. Kuća ima bazen dimenzija 3x7 te dvorište od 500 m2. Svaka prostorija u kući opremljena je klima uređajem (ukupno 3) te je napravljena priprema za podno grijanje. Kuća ima 2 parkinga. Udaljenost od mora i lijepo uređene plaže je 5 km, a centar Brtonigle 2 km. Kuću je moguće koristiti u stambene ili turističke svrhe.
Kuća je udaljena svega 700 m od trgovine, 700 m udaljena je od restorana, 700 m udaljena je od tržnice, doktor je udaljen 5000 m, apoteka je udaljena 5000 m, aerodrom Pula udaljen je 70 km, te aerodrom Portorož udaljen je 20 km, marina Novigrad 8 km, te aquapark Istralandia udaljen je svega 4 km. Golf igralište 5000 m.
Za dodatne informacije stojimo Vam na raspolaganju.



